PRENAJATÉ: Krásny 3-izb. byt s klimatizáciou na prenájom
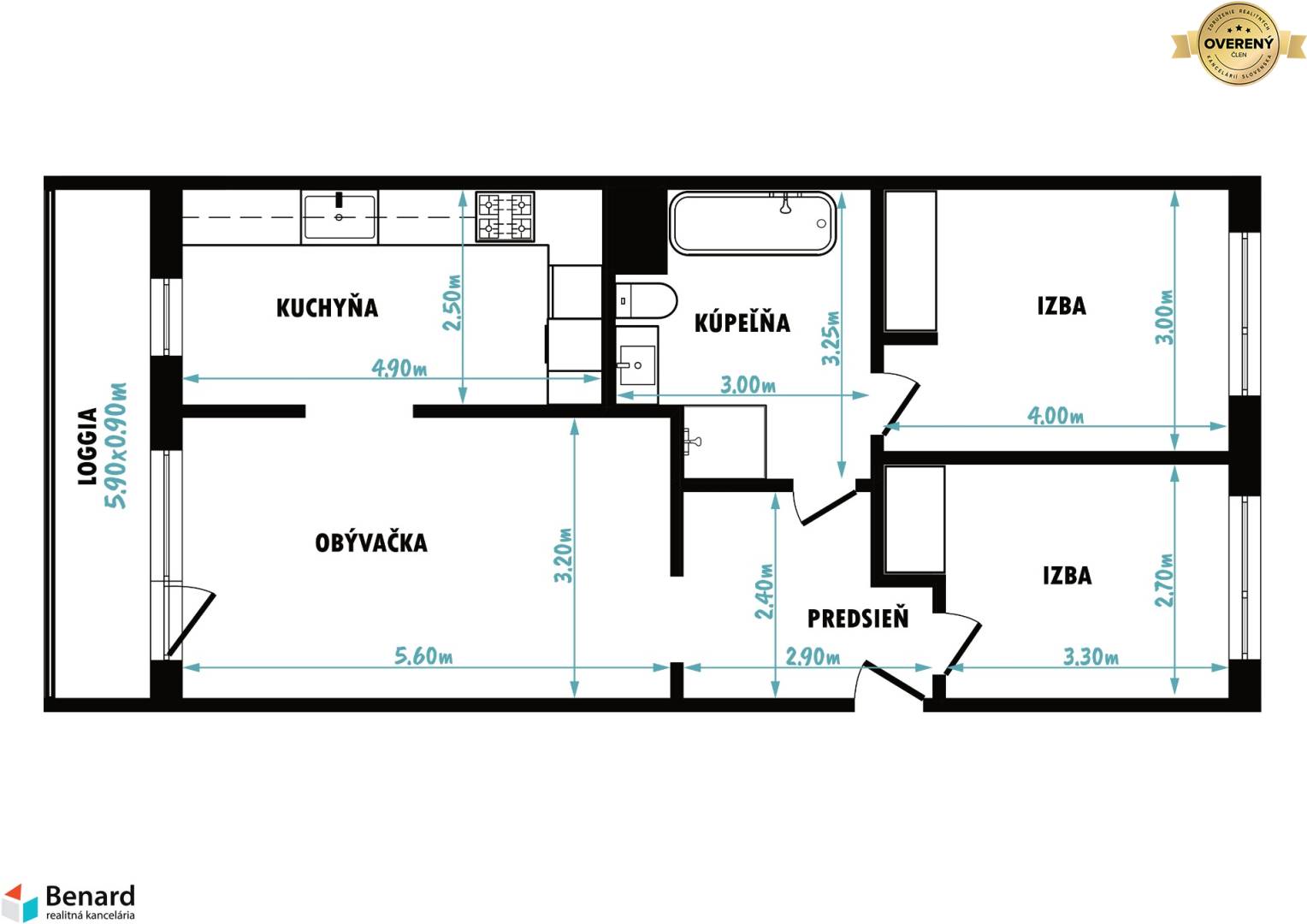
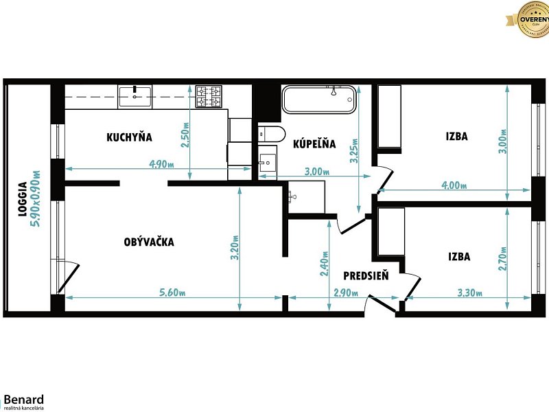
Hľadáte dlhodobý prenájom v príjemnej časti Košíc? Ak áno, máme pre Vás atraktívnu ponuku. Exkluzívne Vám ponúkame na PRENÁJOM krásny, 3-izbový byt na ul. Tokajícka, sídlisko Dargovských hrdinov. Mestská časť Košice - Dargovských hrdinov je zaujímavou lokalitou, ktorá poskytuje veľa možností na trávenie voľného času. V blízkosti sa nachádza obľúbený lesopark, kde si môžete spríjemniť voľné chvíle rôznymi aktivitami, ako napr.: prechádzky, zbieranie húb, bežecké tréningy, letné opekanie, zimná jazda na lyžiarskych bežkách a iné. Furčiansky lesopark je známy aj vďaka športovým súťažiam a vzdelávacím aktivitám, ktoré sa tu organizujú (Furčiansky maratón, Extrém maratón, Family Sport Day, Deň Zeme). Samozrejmosťou je kompletná občianska vybavenosť. Byt je nadštandardne prerobený s nádychom luxusu. Nachádza sa na štvrtom poschodí v bytovke s výťahom. V bytovom dome je tichá a pokojná atmosféra. Veľkým benefitom je, že byt má zasklený balkón, kde môžete stráviť voľné chvíle pri svojom obľúbenom nápoji v akomkoľvek počasí. V byte je klimatizačná jednotka, ktorá Vám zabezpečí príjemné osvieženie počas letných dní. Navyše, klimatizáciu môžete ovládať cez smart aplikáciu cez telefón, čím si môžete nastaviť želanú teplotu v byte ešte pred príchodom domov. Byt je kompletne zariadený a k dispozícii ihneď. Výhody Vášho budúceho, dočasného domova: - priestranný a moderný byt, - byt má klimatizáciu, - rýchla dostupnosť do centra mesta, - byt je zariadený, stačí si doniesť osobné veci, - byt má balkón a kumbál, - pokojné bývanie.... Podmienky prenájmu: - cena prenájmu je 800 eur (vrátane energií a internetu s TV), - nájom za aktuálny mesiac + dvojmesačný depozit, - voľný ihneď, - v byte sa nesmie fajčiť, - domáce zvieratá nie sú povolené (malé plemená psov sú akceptovné). Príďte si byt pozrieť a zažite jeho príjemnú atmosféru naživo. Tešíme sa na obhliadku. 0903 367 922
Hľadáte dlhodobý prenájom v príjemnej časti Košíc? Ak áno, máme pre Vás atraktívnu ponuku.
Exkluzívne Vám ponúkame na PRENÁJOM krásny, 3-izbový byt na ul. Tokajícka, sídlisko Dargovských hrdinov.
Mestská časť Košice - Dargovských hrdinov je zaujímavou lokalitou, ktorá poskytuje veľa možností na trávenie voľného času. V blízkosti sa nachádza obľúbený lesopark, kde si môžete spríjemniť voľné chvíle rôznymi aktivitami, ako napr.: prechádzky, zbieranie húb, bežecké tréningy, letné opekanie, zimná jazda na lyžiarskych bežkách a iné. Furčiansky lesopark je známy aj vďaka športovým súťažiam a vzdelávacím aktivitám, ktoré sa tu organizujú (Furčiansky maratón, Extrém maratón, Family Sport Day, Deň Zeme). Samozrejmosťou je kompletná občianska vybavenosť.
Byt je nadštandardne prerobený s nádychom luxusu. Nachádza sa na štvrtom poschodí v bytovke s výťahom. V bytovom dome je tichá a pokojná atmosféra. Veľkým benefitom je, že byt má zasklený balkón, kde môžete stráviť voľné chvíle pri svojom obľúbenom nápoji v akomkoľvek počasí. V byte je klimatizačná jednotka, ktorá Vám zabezpečí príjemné osvieženie počas letných dní. Navyše, klimatizáciu môžete ovládať cez smart aplikáciu cez telefón, čím si môžete nastaviť želanú teplotu v byte ešte pred príchodom domov. Byt je kompletne zariadený a k dispozícii ihneď.
Výhody Vášho budúceho, dočasného domova:
- priestranný a moderný byt,
- byt má klimatizáciu,
- rýchla dostupnosť do centra mesta,
- byt je zariadený, stačí si doniesť osobné veci,
- byt má balkón a kumbál,
- pokojné bývanie....
Podmienky prenájmu:
- cena prenájmu je 800 eur (vrátane energií a internetu s TV),
- nájom za aktuálny mesiac + dvojmesačný depozit,
- voľný ihneď,
- v byte sa nesmie fajčiť,
- domáce zvieratá nie sú povolené (malé plemená psov sú akceptovné).
Príďte si byt pozrieť a zažite jeho príjemnú atmosféru naživo. Tešíme sa na obhliadku.
0903 367 922


















