PREDANÉ: Rodinný dom v obci Jasov
REZERVOVANÉ: Exkluzívne Vám ponúkam na predaj samostatne stojaci rodinný dom v obci Jasov, na Hlavnej ulici. Obec Jasov je vzdialená necelých 30 km autom od Košíc a 8 km od Moldavy nad Bodvou. V obci nájdete lekáreň, Fresh potraviny, poštu, materskú a základnú školu. Svoje voľné chvíle môžete tráviť príjemnými prechádzkami pri rybníku, či na vyhliadke Jasovská skala a vychutnávať si tak množstvo zelene na dosah priamo v obci. V blízkom okolí Jasova sú v ponuke krásne miesta ako Zádielska tiesňava, Hájska dolina - Hačava, Štós kúpele, Jasovská jaskyňa, Turniansky hrad, Zlatá Idka - Kojšova hoľa či Bukovec - vodná nádrž s možnosťou kúpania. Voľný čas si môžete v pokoji vychutnávať aj na záhrade, slnečnom rovinatom pozemku, ktorý má veľkosť štedrých 2 260 m2 a je oplotený. Rodinný dom je jednopodlažný a jeho úžitková obytná plocha je 101 m2 + 50 m2 dielňa, ktorá sa skladá z 2 miestností. Dispozične je rozdelený na vstupnú predsieň, kuchyňu, kúpeľňu s toaletou a na 3 samostatné izby. Pri vstupe do dennej časti domu Vás očarí vkusne zariadená kuchyňa s jedálenským kútom a pekným výhľadom na záhradu. V obývacej izbe a spálni dotvára romantickú atmosféru domu piecka. Dom je napojený na kanalizáciu a na obecnú vodu, ktorá sa využíva v kuchyni. Výhody rodinného domu: - je umiestnený na začiatku pri vstupe do obce smerom od Moldavy nad Bodvou (slušná časť obce), - IS na pozemku (obec. vodovod, elektrina, kanalizácia) možnosť napojenia na plyn, - priestranné a presvetlené izby, - slnečný, rovinatý, veľký pozemok, - na pozemku je umiestnený altánok so záhrad. chatkou, dielňa ako súčasť domu so samost. vchodom, - k domu vedie prístupová asfaltová cesta, - dom je vhodný na celoročné bývanie alebo sa dá tiež využívať ako víkendová chata na rekreačne účely. - pred kúpou tejto nehnuteľnosti získate od nás informácie o najvhodnejšom hypotekárnom úvere priamo pre Vás. V prípade, že Vás ponuka zaujala, kontaktujte nás na číslo 0914 707 969 a dohodnite si s nami obhliadku. Tešíme sa na stretnutie.
REZERVOVANÉ:
Exkluzívne Vám ponúkam na predaj samostatne stojaci rodinný dom v obci Jasov, na Hlavnej ulici.
Obec Jasov je vzdialená necelých 30 km autom od Košíc a 8 km od Moldavy nad Bodvou.
V obci nájdete lekáreň, Fresh potraviny, poštu, materskú a základnú školu. Svoje voľné chvíle môžete tráviť príjemnými prechádzkami pri rybníku, či na vyhliadke Jasovská skala a vychutnávať si tak množstvo zelene na dosah priamo v obci.
V blízkom okolí Jasova sú v ponuke krásne miesta ako Zádielska tiesňava, Hájska dolina - Hačava, Štós kúpele, Jasovská jaskyňa, Turniansky hrad, Zlatá Idka - Kojšova hoľa či Bukovec - vodná nádrž s možnosťou kúpania.
Voľný čas si môžete v pokoji vychutnávať aj na záhrade, slnečnom rovinatom pozemku, ktorý má veľkosť štedrých 2 260 m2 a je oplotený.
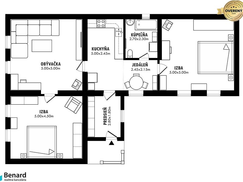
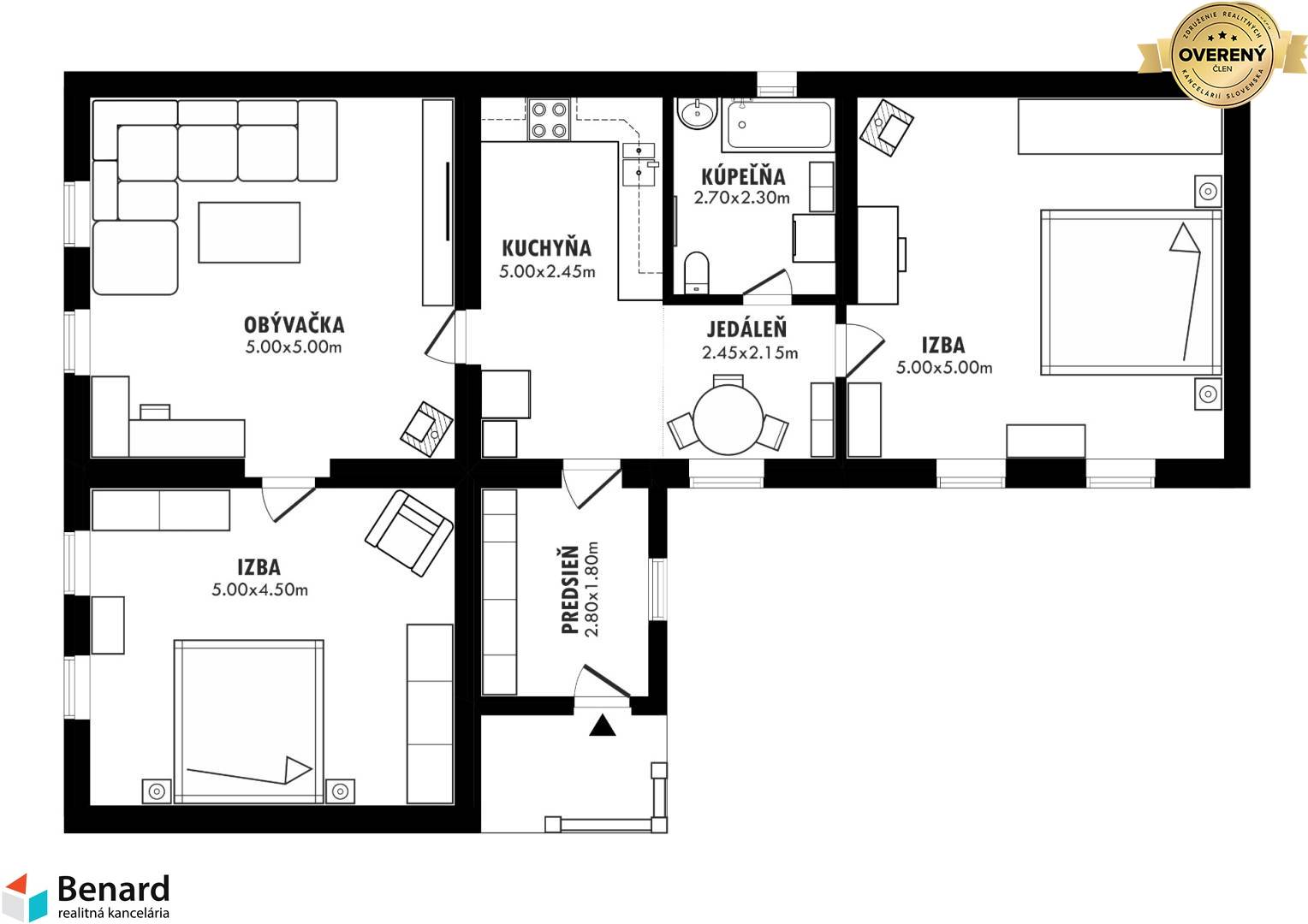
Rodinný dom je jednopodlažný a jeho úžitková obytná plocha je 101 m2 + 50 m2 dielňa, ktorá sa skladá z 2 miestností.
Dispozične je rozdelený na vstupnú predsieň, kuchyňu, kúpeľňu s toaletou a na 3 samostatné izby. Pri vstupe do dennej časti domu Vás očarí vkusne zariadená kuchyňa s jedálenským kútom a pekným výhľadom na záhradu. V obývacej izbe a spálni dotvára romantickú atmosféru domu piecka.
Dom je napojený na kanalizáciu a na obecnú vodu, ktorá sa využíva v kuchyni.
Výhody rodinného domu:
- je umiestnený na začiatku pri vstupe do obce smerom od Moldavy nad Bodvou (slušná časť obce),
- IS na pozemku (obec. vodovod, elektrina, kanalizácia) možnosť napojenia na plyn,
- priestranné a presvetlené izby,
- slnečný, rovinatý, veľký pozemok,
- na pozemku je umiestnený altánok so záhrad. chatkou, dielňa ako súčasť domu so samost. vchodom,
- k domu vedie prístupová asfaltová cesta,
- dom je vhodný na celoročné bývanie alebo sa dá tiež využívať ako víkendová chata na rekreačne účely.
- pred kúpou tejto nehnuteľnosti získate od nás informácie o najvhodnejšom hypotekárnom úvere priamo pre Vás.
V prípade, že Vás ponuka zaujala, kontaktujte nás na číslo 0914 707 969 a dohodnite si s nami obhliadku. Tešíme sa na stretnutie.

















