NA PREDAJ 2 IZBOVÝ BYT S LOGGIOU - BYTY ROZÁLKA - byt 3A
[b]Využite skvelú príležitosť a bývajte v novopostavenom bytovom dome v projekte Byty Rozálka v Pezinku.[/b] Spustili sme predaj ďalších bytových jednotiek v poradí treťom bytovom dome vo výstavbe. Celková výmera nehnuteľnosti je 70,43 m2, z čoho úžitková plocha bytu je 58,66 m2 a loggie 11,77 m2. Byt sa nachádza sa na 3. nadzemnom podlaží 6.poschodového bytového domu na Sasinkovej ulici v Pezinku. [b]BYTOVÝ DOM:[/b] Na prvom nadzemnom podlaží sa nachádza vstupná chodba, poštové schránky, pivničné kobky, garáže, obchodné priestory, výťah, miesto pre upratovaciu službu, elektrorozvodňa a kotolňa. Na ďalších podlažiach sú byty, pričom každý byt má vlastnú loggiu, na najvyššom poschodí terasu. Vstup do bytového domu je na kľúč alebo kód. Videovrátnik s kamerou je nainštalovaný v každej bytovej jednotke. Dom je bezbariérový, má vlastnú kotolňu s plynovým kotlom a zásobníkmi teplej vody. Nachádza sa v ňom 20 bytových jednotiek Odovzdávanie bytov je naplánovené po kolaudácii, koncom roka 2025. [b]BYT:[/b] Predáva sa v stave holobyt. Nachádza sa na 3. nadzemnom podlaží a má SV orientáciu. Dispozične pozostáva zo zádveria, chodby, obývacej izby s kuchyňou, samostatnej spálne, loggie, kúpeľne a WC. Pozdĺž celého bytu je loggia s elegantným riešením zábrany s priehľadného tvrdeného skla. Vstupné dvere sú bezpečnostné, okná a dvere na loggiu sú plastové. Východ na loggiu je možný rovnako z obývacej izby, ako aj spálne. Vykurovacie telesá v bytoch sú radiátory, nainštalovaná je predpríprava pre klimatizáciu. K nehnuteľnosti prislúcha pivničná kobka o veľkosti 1,5 m2 na prvom nadzemnom podlaží. Možnosť pripojenia na optický kábel internetu (ORANGE, SWAN). https://www.bytyrozalka.sk/byty?bytu=409 [b]OKOLIE:[/b] Bytový dom sa nachádza na Sasinkovej ulici v novovybudovanej štvrti, na sídlisku Sever. Ponúka skvelé spojenie mestského života v prírode. Je situovaný v krásnom prostredí vinohradov, ale pritom na mieste s plnou občianskou vybavenosťou v pešej dostupnosti. Ponúka skvelé možnosti turistiky, cykloturistiky, alebo len príjemných prechádzok vinohradmi či lesmi Malých Karpát doslova za dverami Vášho bytu. Školy, škôlky, obchody, pošta, kúpalisko, zimný štadión, jazdecký areál či amfiteáter sa nachádzajú len pár minút chôdze od nehnuteľnosti. Pri financovaní nehnuteľnosti prostredníctvom HÚ je Vám k dispozícii náš hypotekárny špecialista bezplatne.
[b]Využite skvelú príležitosť a bývajte v novopostavenom bytovom dome v projekte Byty Rozálka v Pezinku.[/b]
Spustili sme predaj ďalších bytových jednotiek v poradí treťom bytovom dome vo výstavbe.
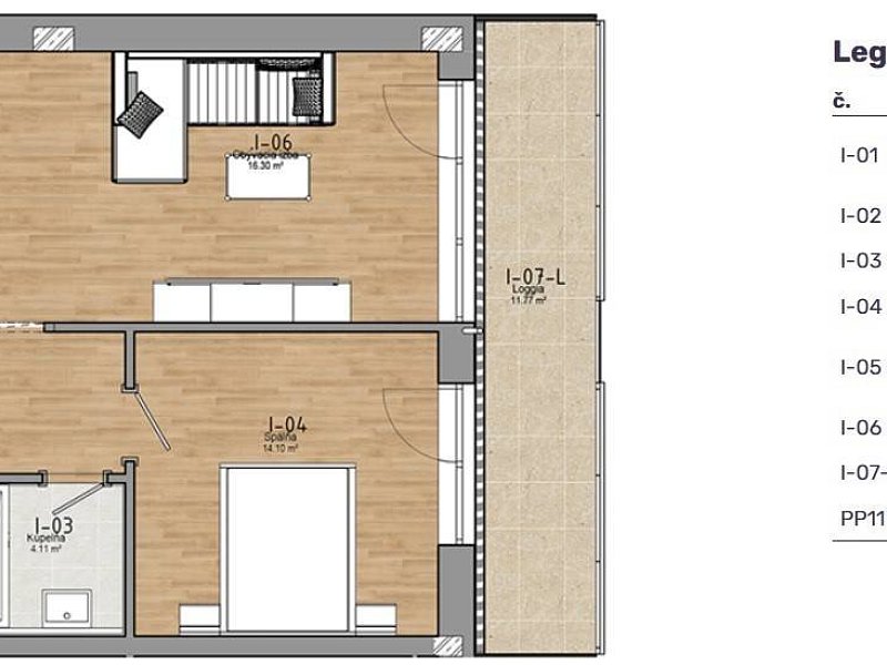
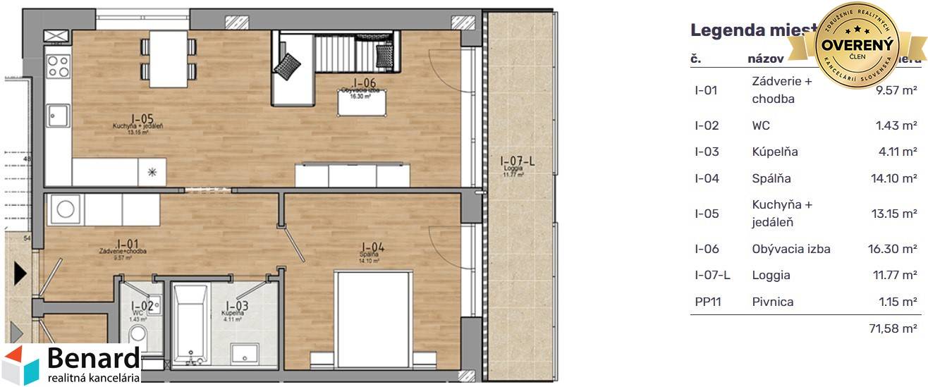
Celková výmera nehnuteľnosti je 70,43 m2, z čoho úžitková plocha bytu je 58,66 m2 a loggie 11,77 m2. Byt sa nachádza sa na 3. nadzemnom podlaží 6.poschodového bytového domu na Sasinkovej ulici v Pezinku.
[b]BYTOVÝ DOM:[/b]
Na prvom nadzemnom podlaží sa nachádza vstupná chodba, poštové schránky, pivničné kobky, garáže, obchodné priestory, výťah, miesto pre upratovaciu službu, elektrorozvodňa a kotolňa.
Na ďalších podlažiach sú byty, pričom každý byt má vlastnú loggiu, na najvyššom poschodí terasu.
Vstup do bytového domu je na kľúč alebo kód.
Videovrátnik s kamerou je nainštalovaný v každej bytovej jednotke.
Dom je bezbariérový, má vlastnú kotolňu s plynovým kotlom a zásobníkmi teplej vody.
Nachádza sa v ňom 20 bytových jednotiek
Odovzdávanie bytov je naplánovené po kolaudácii, koncom roka 2025.
[b]BYT:[/b]
Predáva sa v stave holobyt.
Nachádza sa na 3. nadzemnom podlaží a má SV orientáciu.
Dispozične pozostáva zo zádveria, chodby, obývacej izby s kuchyňou, samostatnej spálne, loggie, kúpeľne a WC.
Pozdĺž celého bytu je loggia s elegantným riešením zábrany s priehľadného tvrdeného skla.
Vstupné dvere sú bezpečnostné, okná a dvere na loggiu sú plastové.
Východ na loggiu je možný rovnako z obývacej izby, ako aj spálne.
Vykurovacie telesá v bytoch sú radiátory, nainštalovaná je predpríprava pre klimatizáciu.
K nehnuteľnosti prislúcha pivničná kobka o veľkosti 1,5 m2 na prvom nadzemnom podlaží.
Možnosť pripojenia na optický kábel internetu (ORANGE, SWAN).
https://www.bytyrozalka.sk/byty?bytu=409
[b]OKOLIE:[/b]
Bytový dom sa nachádza na Sasinkovej ulici v novovybudovanej štvrti, na sídlisku Sever.
Ponúka skvelé spojenie mestského života v prírode.
Je situovaný v krásnom prostredí vinohradov, ale pritom na mieste s plnou občianskou vybavenosťou v pešej dostupnosti.
Ponúka skvelé možnosti turistiky, cykloturistiky, alebo len príjemných prechádzok vinohradmi či lesmi Malých Karpát doslova za dverami Vášho bytu.
Školy, škôlky, obchody, pošta, kúpalisko, zimný štadión, jazdecký areál či amfiteáter sa nachádzajú len pár minút chôdze od nehnuteľnosti.
Pri financovaní nehnuteľnosti prostredníctvom HÚ je Vám k dispozícii náš hypotekárny špecialista bezplatne.






