REZERVOVANÝ 2 IZBOVÝ BYT, BALKÓN, PREŠOV, UL. PAVLOVIČOVO NÁMESTIE
Ponúkame na predaj zrekonštruovaný 2 izbový TEHLOVÝ byt s balkónom v širšom centre mesta – ul. Pavlovičovo námestie Pozostáva z chodby, kuchyne prepojenej s obývačkou, spálne so vstupom na balkón, spoločnej kúpeľne a WC. V prípade záujmu byt sa predáva zariadený. - 52 m2 + balkón, 2/5 poschodie (výťah), orientácia východ – juh - západ - po rekonštrukcii - plastové okná v celom byte vrátane balkóna - parkety (izby), keramická dlažba (kuchyňa, chodba, kúpeľňa, WC) - jadro murované - zrekonštruovaná kúpeľňa (rohová vaňa, sanita, dlažba) - vstavaná skriňa v spálni - znížený strop v spálni - 2 murované pivnice Bytový dom je zateplený, vymenené sú vchodové dvere, okná v spoločných priestoroch, nová strecha, domový vrátnik. Nachádza sa v širšom centre mesta, s tým súvisí všetka potrebná občianska vybavenosť - zastávka MHD, obchody, banky, divadlo...do centra mesta cca 10 minút. Ak máte záujem o obhliadku prípadne potrebujete viac informácii nájdete nás v realitnom centre na Slovenskej ul. č. 8 v Prešove, prípadne na kocisova@benard.sk alebo na telefónnom čísle 0910 900 920 ZADARMO K TEJTO NEHNUTEĽNOSTI DOSTANETE: ¬ inzerovanie nehnuteľnosti na najsledovanejších realitných portáloch a v miestnych novinách; ¬ preverenie právneho stavu a tiarch danej nehnuteľnosti; ¬ vysvetlenie problémov záložných tiarch, vecných bremien a pod.; ¬ právny servis zabezpečený právnikom s dlhoročnými skúsenosťami; ¬ kópiu LV prípadne katastrálnej mapy s kolkom na právne účely; ¬ poplatky za overenie podpisov na zmluvách u notára; ¬ správny poplatok za vklad vlastníckeho práva do katastra vo výške 100,-€ ¬ realitné, daňové a právne poradenstvo; ¬ zabezpečenie znalca na vypracovania znaleckého posudku; ¬ vypracovanie ponúk na zabezpečenie úveru u nášho hypotekárneho odborníka, ktorý spolupracuje s viacerými bankami
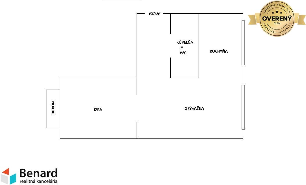
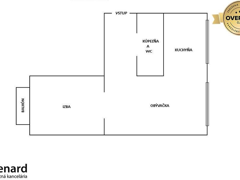
Ponúkame na predaj zrekonštruovaný 2 izbový TEHLOVÝ byt s balkónom v širšom centre mesta – ul. Pavlovičovo námestie
Pozostáva z chodby, kuchyne prepojenej s obývačkou, spálne so vstupom na balkón, spoločnej kúpeľne a WC.
V prípade záujmu byt sa predáva zariadený.
- 52 m2 + balkón, 2/5 poschodie (výťah), orientácia východ – juh - západ
- po rekonštrukcii
- plastové okná v celom byte vrátane balkóna
- parkety (izby), keramická dlažba (kuchyňa, chodba, kúpeľňa, WC)
- jadro murované
- zrekonštruovaná kúpeľňa (rohová vaňa, sanita, dlažba)
- vstavaná skriňa v spálni
- znížený strop v spálni
- 2 murované pivnice
Bytový dom je zateplený, vymenené sú vchodové dvere, okná v spoločných priestoroch, nová strecha, domový vrátnik.
Nachádza sa v širšom centre mesta, s tým súvisí všetka potrebná občianska vybavenosť - zastávka MHD, obchody, banky, divadlo...do centra mesta cca 10 minút.
Ak máte záujem o obhliadku prípadne potrebujete viac informácii nájdete nás v realitnom centre na Slovenskej ul. č. 8 v Prešove, prípadne na kocisova@benard.sk alebo na telefónnom čísle 0910 900 920
ZADARMO K TEJTO NEHNUTEĽNOSTI DOSTANETE:
¬ inzerovanie nehnuteľnosti na najsledovanejších realitných portáloch a v miestnych novinách;
¬ preverenie právneho stavu a tiarch danej nehnuteľnosti;
¬ vysvetlenie problémov záložných tiarch, vecných bremien a pod.;
¬ právny servis zabezpečený právnikom s dlhoročnými skúsenosťami;
¬ kópiu LV prípadne katastrálnej mapy s kolkom na právne účely;
¬ poplatky za overenie podpisov na zmluvách u notára;
¬ správny poplatok za vklad vlastníckeho práva do katastra vo výške 100,-€
¬ realitné, daňové a právne poradenstvo;
¬ zabezpečenie znalca na vypracovania znaleckého posudku;
¬ vypracovanie ponúk na zabezpečenie úveru u nášho hypotekárneho odborníka, ktorý spolupracuje s viacerými bankami



















