NA PRENÁJOM 2 IZBOVÝ BYT, BALKÓN, PREŠOV, UL. PAVLOVIČOVO NÁMESTIE
Na prenájom zrekonštruovaný a zariadený 2 izbový TEHLOVÝ byt s balkónom v širšom centre mesta – ul. Pavlovičovo námestie. Pozostáva z chodby, kuchyne prepojenej s obývačkou, spálne so vstupom na balkón, spoločnej kúpeľne a WC. Pre maximálne 2 osoby. Uvedená cena je vrátane energií (bez internetu). Potrebný 1 depozit. - 52 m2 + balkón, 2/5 poschodie (výťah), orientácia východ – juh - západ - po rekonštrukcii - plastové okná v celom byte vrátane balkóna - parkety (izby), keramická dlažba (kuchyňa, chodba, kúpeľňa, WC) - jadro murované - zrekonštruovaná kúpeľňa (rohová vaňa, sanita, dlažba) - vstavaná skriňa v spálni - znížený strop v spálni - 2 murované pivnice k dispozícii Byt sa prenajíma so zariadením, tak ako ho vidíte na fotkách (kuchynská linka, sporák, chladnička, mraznička, umývačka riadu, práčka, gaučová súprava, stôl, stoličky, posteľ, vstavaná skriňa) Bytový dom je zateplený, vymenené sú vchodové dvere, okná v spoločných priestoroch, nová strecha, domový vrátnik. K dispozícii od 1.3.2026 Nachádza sa v širšom centre mesta, s tým súvisí všetka potrebná občianska vybavenosť (zastávka MHD, obchody, banky, divadlo...do centra mesta cca 10 minút. Ak máte záujem o obhliadku prípadne potrebujete viac informácii nájdete nás v realitnom centre na Slovenskej ul. č. 8 v Prešove, prípadne na kocisova@benard.sk alebo na telefónnom čísle 0910 900 920
Na prenájom zrekonštruovaný a zariadený 2 izbový TEHLOVÝ byt s balkónom v širšom centre mesta – ul. Pavlovičovo námestie.
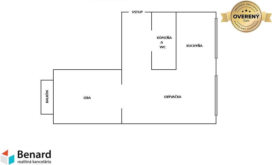
Pozostáva z chodby, kuchyne prepojenej s obývačkou, spálne so vstupom na balkón, spoločnej kúpeľne a WC.
Pre maximálne 2 osoby. Uvedená cena je vrátane energií (bez internetu).
Potrebný 1 depozit.
- 52 m2 + balkón, 2/5 poschodie (výťah), orientácia východ – juh - západ
- po rekonštrukcii
- plastové okná v celom byte vrátane balkóna
- parkety (izby), keramická dlažba (kuchyňa, chodba, kúpeľňa, WC)
- jadro murované
- zrekonštruovaná kúpeľňa (rohová vaňa, sanita, dlažba)
- vstavaná skriňa v spálni
- znížený strop v spálni
- 2 murované pivnice k dispozícii
Byt sa prenajíma so zariadením, tak ako ho vidíte na fotkách (kuchynská linka, sporák, chladnička, mraznička, umývačka riadu, práčka, gaučová súprava, stôl, stoličky, posteľ, vstavaná skriňa)
Bytový dom je zateplený, vymenené sú vchodové dvere, okná v spoločných priestoroch, nová strecha, domový vrátnik.
K dispozícii od 1.3.2026
Nachádza sa v širšom centre mesta, s tým súvisí všetka potrebná občianska vybavenosť (zastávka MHD, obchody, banky, divadlo...do centra mesta cca 10 minút.
Ak máte záujem o obhliadku prípadne potrebujete viac informácii nájdete nás v realitnom centre na Slovenskej ul. č. 8 v Prešove, prípadne na kocisova@benard.sk alebo na telefónnom čísle 0910 900 920


















